Trilocale in vendita

Lucera, Viale Augusto
€ 89.000
3 locali 3 locali
82 Mq 82 Mq
1 bagno 1 bagno

Trilocale in vendita

Lucera, Viale Augusto

Descrizione annuncio

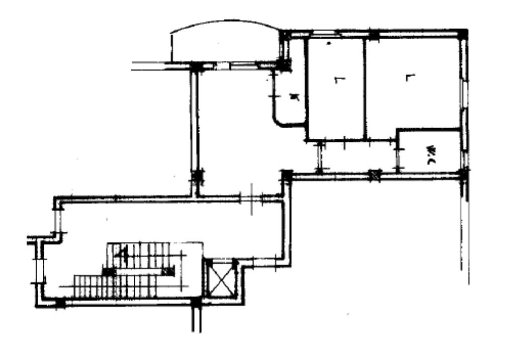
Appartamento al primo piano di una palazzina recente, perfetto per chi desidera un ambiente accogliente e ben organizzato.

L’ingresso conduce a una cucina abitabile con cucinino, entrambi affacciati su un balcone verandato che amplia gli spazi vivibili.

La metratura è di 82 mq, distribuiti in modo funzionale e valorizzati da una doppia esposizione che garantisce luminosità in ogni stanza.

Dal corridoio si accede alla zona notte composta da cameretta, camera da letto e bagno.

Ogni ambiente dispone di finestre, rendendo l’appartamento arioso e piacevole. L’immobile è stato recentemente sistemato e non richiede alcun intervento: pronto per essere abitato.

A completare la proposta, la possibilità di parcheggio nel cortile condominiale, accessibile tramite cancello automatizzato, una comodità che aggiunge valore alla proprietà.

Contattaci per ulteriori informazioni o per fissare un appuntamento!

Mostra tutto

Nelle vicinanze

Trasporto pubblico Trasporto pubblico
Lucera 2
Lucera 2
1,3 Km
Lucera
Lucera
1,4 Km
Via Napoleone Battaglia - Civ. 43
Via Napoleone Battaglia - Civ. 43
140 m
Viale Maria De Peppo Serena - Civ. 44
Viale Maria De Peppo Serena - Civ. 44
220 m
Scuole Scuole
Scuola Lombardo Radice
580 m
ITET Vittorio Emanuele III
750 m
Istituto Comprensivo Bozzini - Fasani
780 m
Convitto Nazionale "R. Bonghi"
810 m
Scuola Dante Alighieri
820 m
Farmacia Farmacia
Farmacia
940 m
Ospedali Ospedali
Ospedali
960 m
Francesco Lastaria
970 m
Pronto Soccorso Ospedale Francesco Lastaria
990 m
Supermercati Supermercati
MD
660 m
Conad
800 m
Discount
850 m
Negozi Negozi
Negozi
900 m
Bar Bar
Bar
630 m
Mostra tutto

Caratteristiche

Rif.:
61186592
Piano:
1 di 3 con ascensore (Piano basso)
Posti auto:
1
Balconi:
1
Camere da letto:
2
Arredamento:
Assente
Mostra tutto
Prezzo Prezzo
€ 89.000
Rata mutuo Rata mutuo
€ 413 / mese
Proponi il tuo prezzoProponi il tuo prezzo
Immobile valutato con T·Valuta

Classe Energetica

E
E
E
E
E
E
E
E
E
EP invernale del fabbricato:
EP estiva del fabbricato:
Anno di costruzione:
1991
Riscaldamento:
Autonomo
Tipo impianto:
A radiatori
Tipo alimentazione:
Metano

Ti interessa visionare l'immobile?

Fissa un appuntamento  Fissa un appuntamento

Richiedi informazioni

Clicca su Leggi per aprire l'informativa
* Questi campi sono obbligatori

Calcola il tuo mutuo

Semplice e senza impegno
Anticipo

( % )
Mutuo

( % )

pochi semplici passi

inserisci i tuoi dati
Questionario completato
Grazie per aver richiesto un appuntamento senza impegno con un nostro Consulente del Credito e Assicurativo.

Hai inserito correttamente tutti i dati necessari e a breve riceverai una e-mail con un link da convalidare per inviare i tuoi dati.
Affiliato
Studio Santa Maria Srl
Via Zuppetta, 14 71036 Lucera (FG)

Il nostro staff


  • Giovanni Ialeggio
    Affiliato

  • Marianna Stallone
    Coordinatrice

  • Gianluca Maddalena
    Affiliato

  • Maria Antonia Corvelli
    Collaboratrice

  • Mario Petito
    Collaboratore

  • Simona Vellonio
    Coordinatrice
Via Zuppetta, 14 71036 Lucera (FG)
Zona: Lucera
Mostra su mappa
Orari: Dal Lunedì al Venerdì - Mattina 9.00 - 13.00 / Pomeriggio 16.00 - 20.30 Sabato - Mattina 9.00 - 13.00 / Pomeriggio chiuso
Affiliato
Studio Santa Maria Srl
Via Zuppetta, 14 71036 Lucera (FG)

2026 Tecnocasa Franchising S.p.A. - P. IVA 08365160152 - Via Monte Bianco 60/A 20089 Rozzano (MI). Ogni agenzia ha un proprio titolare ed è autonoma. Privacy policy | Policy utilizzo | Cookie policy