Attività in affitto

Lucera, Locale Commerciale Via Michele Scioscia - Porta Foggia
€ 700 / mese
2 locali 2 locali
207 Mq 207 Mq
1 bagno 1 bagno

Attività in affitto

Lucera, Locale Commerciale Via Michele Scioscia - Porta Foggia

Descrizione annuncio

Affitta il tuo futuro, nel cuore pulsante della città!

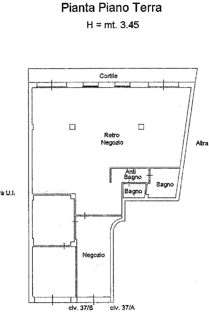
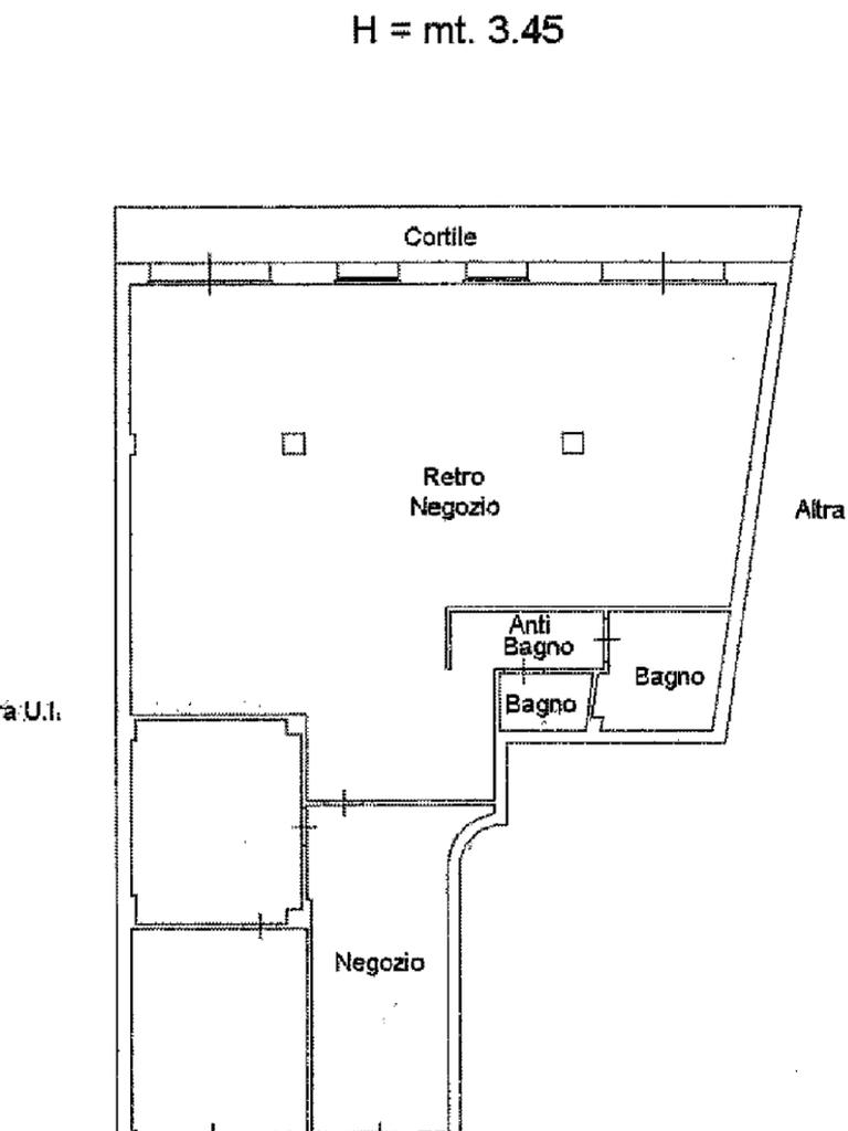
A pochi passi dalla Circonvallazione e da Porta Foggia, in una zona ricca di servizi e attività commerciali, ti presentiamo un locale commerciale di ca. 132 mq, pronto ad accogliere nuove idee, passioni e progetti imprenditoriali.

Ampio, luminoso e versatile, il locale si apre con due vetrine su strada e due serrande motorizzate, garantendo massima visibilità e praticità. Situato al piano terra, è composto da un unico grande ambiente modulabile grazie a divisori interni, oltre a bagno e un comodo cortile retrostante che rappresenta un valore aggiunto.

Attualmente sede di una scuola di ballo, si presenta in ottime condizioni, pronto per accogliere una vasta gamma di attività: showroom, studio professionale, laboratorio creativo, boutique, centro estetico, ufficio e molto altro ancora.

Il tuo spazio ideale per realizzare un sogno, crescere un’attività o dare vita a un nuovo inizio.

Posizione strategica, visibilità eccellente e grande potenziale: questo locale aspetta solo te.

Mostra tutto

Nelle vicinanze

Trasporto pubblico Trasporto pubblico
Lucera 2
Lucera 2
1,0 Km
Lucera
Lucera
1,1 Km
Via Napoleone Battaglia - Civ. 99
Via Napoleone Battaglia - Civ. 99
150 m
Via Foggia - Civ. 64
Via Foggia - Civ. 64
170 m
Scuole Scuole
Scuola Lombardo Radice
320 m
Istituto Comprensivo Bozzini - Fasani
530 m
Convitto Nazionale "R. Bonghi"
720 m
Liceo Ruggiero Bonghi
840 m
Scuola Edoardo Tommasone
970 m
Farmacia Farmacia
Farmacia
870 m
Ospedali Ospedali
Ospedali
1,1 Km
Francesco Lastaria
1,2 Km
Pronto Soccorso Ospedale Francesco Lastaria
1,2 Km
Supermercati Supermercati
MD
400 m
Conad
640 m
Discount
640 m
Negozi Negozi
Negozi
1,1 Km
Bar Bar
Bar
800 m
Mostra tutto

Caratteristiche

Rif.:
61104347
Piano:
Terra di 2
Totale piani:
2
Condizionamento:
Autonomo
Ascensore:
No
Riscaldamento:
Autonomo
Mostra tutto
Prezzo Prezzo
€ 700 / mese

Classe Energetica

E
E
E
E
E
E
E
E
E
EP globale non rinnovabile:
185.15 kW h/m² anno
EP globale rinnovabile:
185.15 kW h/m² anno
EP invernale del fabbricato:
EP estiva del fabbricato:
Anno di costruzione:
1994
Riscaldamento:
Autonomo
Tipo impianto:
A radiatori
Tipo alimentazione:
Metano

Ti interessa visionare l'immobile?

Fissa un appuntamento  Fissa un appuntamento

Richiedi informazioni

Clicca su Leggi per aprire l'informativa
* Questi campi sono obbligatori
Affiliato
Studio Santa Maria Srl
Via Zuppetta, 14 71036 Lucera (FG)

Il nostro staff


  • Giovanni Ialeggio
    Affiliato

  • Marianna Stallone
    Coordinatrice

  • Gianluca Maddalena
    Affiliato

  • Mario Petito
    Collaboratore

  • Simona Vellonio
    Coordinatrice
Via Zuppetta, 14 71036 Lucera (FG)
Zona: Lucera
Mostra su mappa
Orari: Dal Lunedì al Venerdì - Mattina 9.00 - 13.00 / Pomeriggio 16.00 - 20.30 Sabato - Mattina 9.00 - 13.00 / Pomeriggio chiuso
Affiliato
Studio Santa Maria Srl
Via Zuppetta, 14 71036 Lucera (FG)

2025 Tecnocasa Franchising S.p.A. - P. IVA 08365160152 - Via Monte Bianco 60/A 20089 Rozzano (MI). Ogni agenzia ha un proprio titolare ed è autonoma. Privacy policy | Policy utilizzo | Cookie policy